Rubner Haus
ALMA Platz 25b


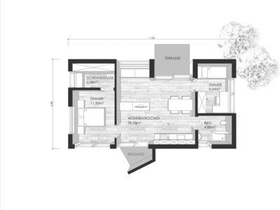
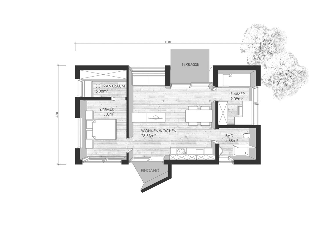
ALMA Modernes Wohnen

Weg vom traditionellen Bungalow-Bau, hin zum modernen Loft-Charakter – ALMA ermöglicht durch die spezielle Bauweise barrierefreies Wohnen auf einer Ebene. Die Architektur ist geprägt von einer klaren, an den Bauhausstil angelehnten Formensprache. ALMA zeichnet sich dabei insbesondere durch Vielseitigkeit aus. Der Grundriss lässt sich individuell an die Bedürfnisse der Bauherren anpassen.
Konstruktiv überzeugt ALMA durch das für Rubner charakteristische Holzriegelwandsystem aus biologischen Bau- und Dämmstoffen (Kork, Holzweichfaser).

Nehmen Sie direkten Kontakt zu uns auf -
gerne beantworten wir Ihre Anfragen telefonisch oder per Mail:

Herr Norbert Rauch, mobil: 0162 4188864, e-Mail: norbert.rauch(@)rubner.com 

Kontakt zum Objekt „ALMA“

Ausstellung Bauzentrum Poing (München)
Telefon + 49 89 94384250
Fax + 49 89 94384252
E-Mail haus.muenchen(@)rubner.com

Details

Gesamtwohnfläche 60,44 m²
Wohnfläche Erdgeschoss 60,44 m²
Konstruktionsart Holzständerbauweise

Info-Anforderung an Rubner Haus


Kontakt

Firmenzentrale

Rubner Haus

Handwerkerzone 4
39030 Kiens/Südtirol

Telefon: +39 0474 5633-23
Fax: +39 0474 5633-00

www.haus.rubner.com

Die Ausstellung Eigenheim und Garten ist nicht verantwortlich für die Inhalte externer Internetseiten.

Eintritt

Eintrittspreis: € 4,–

Ermäßigt: € 2,00 (Kinder bis 16 Jahre, Schüler, Studenten, Rentner, Schwerbehinderte)

Kostenlos: Kinder bis 10 Jahre

Parkplatz: kostenlos

Öffnungszeiten

10:00 bis 17:00 Uhr
Dienstag, Mittwoch, Donnerstag, Freitag, Samstag und Sonntag*
(Montag ist Ruhetag)

* Auch feiertags. Gilt nicht am: Karfreitag,
24.–26.12./31.12./1.1.