FischerHaus GmbH & Co. KG
CasaMina Platz 31


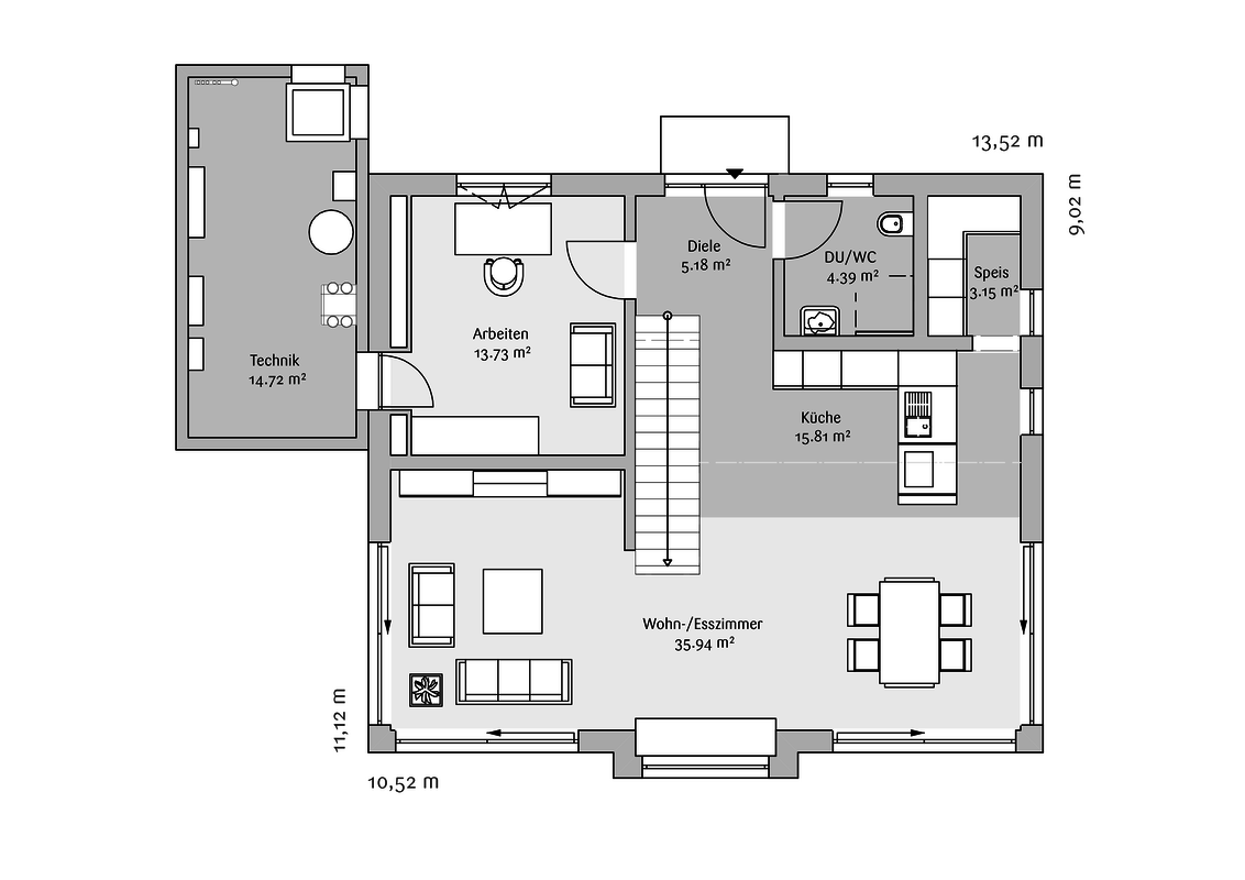
Das neue Musterhaus "CasaMina" - ein ganzheitliches ElektroHaus aus Holz - wurde im Mai 2021 eröffnet.

Intelligent, unabhängig, unkompliziert: vollelektrisch.

Zwei Herausforderungen hat Fischerhaus mit der neuen vollelektrischen Haus-Variante bewältigt: Energie Speichern & mit Intelligenz Sparen – ohne Komfort-Verzicht. Das Ergebnis lässt sich jetzt als Musterhaus im Bauzentrum Poing bei München von künftigen Bau-Paaren bestaunen.

Lange sind echte Elektrohäuser am Batterie-Problem gescheitert. Sonnenstrom ist wetterabhängig. Bei schönem Wetter gibt’s ihn im Überfluss, wenn es grau und kalt wird, ist er knapp. Man bräuchte teure, große Batterien, wenn man sich den Strom einfach konventionell aufheben wollte. Die bessere Lösung ist, sich das ganze Haus als Speicher zu denken. Bis hin zum E-Auto vor der Tür.

FischerHaus hat deshalb einige entscheidende Vorteile zu einer intelligenten Gesamt-Lösung kombiniert. Erstes Element ist die hervorragende energiesparende Gebäudehülle von FischerHaus. Als zweite Komponente entfaltet das smarte, Haus umfassende „Loxone“ Energiemanagement seine Wirkung. Online werden Wetterdaten verarbeitet, um vorrausschauend die Energien dahin zu lenken, wo Sie später gebraucht werden.Drittens: Die leistungsstarke Photovoltaikanlage speist diese Energie an der Unterseite des Estrichs ein. Der Fußboden wird so zum Masse-Speicher. Und zwar phasenverschoben: Das heißt, wenn die Sonne draußen bereits schwächer wird, gibt der Boden die Energie in der vorberechneten Zeitspanne an den Raum ab.

Die Kombination von Verschattung und Lüftung kühlt das Gebäude über Nacht mit minimalem Energieaufwand ab und hält tagsüber die Temperatur konstant. Das Brauchwasser wird über eine Luft-Wasser Wärmepumpe gespeist. Zusammen mit der Gebäudebatterie von „sonnen“ und der Speicherkapazität vom künftigen Elektroauto behält das Haus so viel von seinen Überschüssen aus den Sonnentagen, dass es fast durchgehend autark elektrisch funktioniert.

Die ganze dafür erforderliche Gebäudetechnik hat FischerHaus, salopp gesagt, in eine einzelne Kiste gepackt. Daran erinnert das kompakte Technikmodul, das bereits im Werk vorinstalliert wurde. Das Modul ist auf der Baustelle schnell montiert und spart Platz. So gewinnt das Bau-Paar zusätzlich einen Extra-Raum im Haus.

CasaMina verfügt über Komfort-Lichtsteuerung, die alle Lebenssituationen der Familie richtig in Szene setzt. Ausgestattet mit neuen Fenster-Verschlusskontakten, lässt sich die schützende Gebäudehülle via Loxone aus der Ferne von seinen Bewohnern überwachen. Die können per Smartphone auch alle anderen Funktionen im Haus steuern.

Neben dem Komfort ging es den Entwicklern von CasaMina schwerpunktmäßig um die elektrische Effizienz des Hauses. Nichts wird verschwendet. Die Hülle ist sowieso KfW-Effizienzhaus 40 (bei Fischerhaus der Standard). Dazu kommt, dass die gesamte Technik bis ins Detail auf Strom-Sparsamkeit optimiert ist. Von der Beleuchtung bis zum Home-Office und der Sicherheitsanlage: Die Steuerung dafür läuft smart digital.

Herr Hubert Bruckbauer, Telefon: +49 157 56355469,
e-Mail: hubert.bruckbauer(@)fischerhausberater.de

Frau Hannelore Geyer, Telefon: +49171 6358096,
e-Mail: hannelore.geyer(@)fischerhausberater.de

Frau Nina Hollerieth, Telefon: +49 160 99077011,
e-Mail: nina.hollerieth(@)fischerhausberater.de

Herr Thomas Korell, Telefon: +49 151 41865077,
e-Mail: thomas.korell(@)fischerhausberater.de

Herr Udo Petrowsky, Telefon: +49 151 14994288,
e-Mail: udo.petrowsky(@)fischerhausberater.de

Kontakt zum Objekt „CasaMina“

Ausstellung Bauzentrum Poing (München)
Telefon 09434 9500

Details

Konstruktionsart Holztafelbauweise

Info-Anforderung an FischerHaus GmbH & Co. KG


Kontakt

Firmenzentrale

FischerHaus GmbH & Co. KG

Rathausplatz 4-6
92439 Bodenwöhr

Telefon: +49 9434 950-0
Fax: +49 9434 950-101

www.fischerhaus.de

Die Ausstellung Eigenheim und Garten ist nicht verantwortlich für die Inhalte externer Internetseiten.

Eintritt

Eintrittspreis: € 4,–

Ermäßigt: € 2,00 (Kinder bis 16 Jahre, Schüler, Studenten, Rentner, Schwerbehinderte)

Kostenlos: Kinder bis 10 Jahre

Parkplatz: kostenlos

Öffnungszeiten

10:00 bis 17:00 Uhr
Dienstag, Mittwoch, Donnerstag, Freitag, Samstag und Sonntag*
(Montag ist Ruhetag)

* Auch feiertags. Gilt nicht am: Karfreitag,
24.–26.12./31.12./1.1.