ISARTALER HOLZHAUS
Haus Tegernsee Platz 45


Individuelle, zeitgemäße Architektur in Verbindung mit ökologischen Prinzipien.

Durch den Einsatz heimischer Hölzer aus dem Voralpenraum in der diffusionsoffenen Konstruktion der Wände und Dächer, wird ein hervorragendes Raumklima erzielt. Im Sommer angenehm kühl und im Winter trocken warm. Die altbewährten, weiten Vordächer schützen die Fassade und minimieren den Pflegeaufwand. Ganz besonders wichtig für den oberbayrischen Raum, ist die doppelte Dacheindeckung mit massivem Unterdach als Schutz vor Flugschnee und Überhitzung im Dachgeschoss.

Nehmen Sie direkten Kontakt zu uns auf - 
gerne beantworten wir Ihre Anfragen telefonisch oder per Mail:

Herr Dipl.Ing. Erhard Domscheit, Architekt, mobil: 0177 / 27 36 999,
E-Mail: e.domscheit(@)isartaler-holzhaus.de 

Herr Christoph Kellerer, B.Eng. (FH Rosenheim) Holzbau und Ausbau, Tel.: +49 89 503039,
E-mail: c.kellerer(@)isartaler-holzhaus.de

Herr Herbert Schaal, Mobil.: 0157 / 50 99 28 98, 
E-mail: h.schaal(@)isartaler-holzhaus.de

Herr Klemens Dufner, Vertriebsleiter, Tel.: +49 89 503039,
E-mail: k.dufner(@)isartaler-holzhaus.de

 

Kontakt zum Objekt „Haus Tegernsee“

Ausstellung Bauzentrum Poing (München)
Telefon +49 89 503039
Fax +49 89 5026348

Details

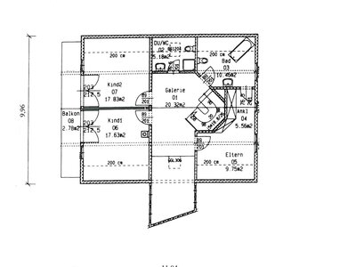
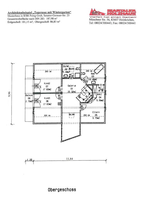
Gesamtwohnfläche 193,00 m²
Wohnfläche Erdgeschoss 104,00 m²
Wohnfläche Obergeschoss 89,00 m²
Konstruktionsart Holztafelbauweise

Info-Anforderung an ISARTALER HOLZHAUS


Kontakt

Firmenzentrale

ISARTALER HOLZHAUS
GmbH & Co. KG

Münchner Straße 56
83607 Holzkirchen

Telefon: +49 8024 3004-0
Fax: +49 8024 3004-41

www.isartaler-holzhaus.de

Die Ausstellung Eigenheim und Garten ist nicht verantwortlich für die Inhalte externer Internetseiten.

Eintritt

Eintrittspreis: € 4,–

Ermäßigt: € 2,00 (Kinder bis 16 Jahre, Schüler, Studenten, Rentner, Schwerbehinderte)

Kostenlos: Kinder bis 10 Jahre

Parkplatz: kostenlos

Öffnungszeiten

10:00 bis 17:00 Uhr
Dienstag, Mittwoch, Donnerstag, Freitag, Samstag und Sonntag*
(Montag ist Ruhetag)

* Auch feiertags. Gilt nicht am: Karfreitag,
24.–26.12./31.12./1.1.