ScanHaus Marlow GmbH
Musterhaus Bad Vilbel Platz 69


So individuell

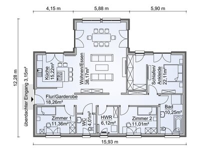
Dieser Winkelbungalow ist einfach ein Hingucker: Durch eine Kombination aus Kathedraldecke und Panoramaverglasung im Wohn-/Essbereich entsteht ein beeindruckendes Raumgefühl mit faszinierendem Ausblick. Das barrierefreie Raumkonzept umfasst insgesamt vier Zimmer und wird ergänzt durch den überdachten Hauseingangsbereich und dem vergrößerten Dachüberstand. Welches Wohnkonzept zu Ihrem Lebensmodell passt, ist Ihre Entscheidung – ein beeindruckendes Wohnambiente ist hier garantiert!

ScanHaus Marlow ist einer der führenden Anbieter von modernen und umweltfreundlichen Markenhäusern. Scanhäuser gehören auf Grund ihrer Bauweise zu den energieeffizientesten Wohngebäuden der heutigen Zeit. Der Firmensitz mit seinem modernen Produktionsbetrieb befindet sich in Marlow, im Norden Mecklenburg-Vorpommerns. Als mittelständisches Unternehmen beschäftigt ScanHaus Marlow derzeit mehr als 500 Mitarbeiter und ist inzwischen deutschlandweit an über 50 Standorten mit Musterhäusern und Vertriebsbüros präsent. Im Jahr baut ScanHaus Marlow ca. 650 bis 700 Häuser bundesweit. Über 70 verschiedene Haustypen - mit mehreren Grundrissvarianten - stehen Ihnen zur Auswahl und für jeden gilt: Bei ScanHaus Marlow zahlen Sie erst, wenn Ihr Scanhaus steht! Erst BAUEN - dann ZAHLEN!

Kontakt zum Objekt „Musterhaus Bad Vilbel“

Ausstellung Frankfurt

Details

Gesamtwohnfläche 139,65 m²
Wohnfläche Erdgeschoss 139,65 m²
Konstruktionsart Holzständerbau

Info-Anforderung an ScanHaus Marlow GmbH


Kontakt

Firmenzentrale

ScanHaus Marlow GmbH

Carl-Kossow-Str. 46
18337 Marlow

Telefon: +49 38221 400-0
Fax: +49 38221 400-40

www.scanhaus.de

Die Ausstellung Eigenheim und Garten ist nicht verantwortlich für die Inhalte externer Internetseiten.

Eintritt

Eintrittspreis: € 3,–

Ermäßigt: € 1,50 (Kinder bis 16 Jahre, Schüler, Studenten, Rentner, Schwerbehinderte)

Kostenlos: Kinder bis 10 Jahre

Parkplatz: € 1,50

Öffnungszeiten

11:00 bis 18:00 Uhr
Mittwoch, Donnerstag, Freitag, Samstag und Sonntag* 
(Montag und Dienstag ist Ruhetag)

* Auch feiertags. Gilt nicht am: Karfreitag,
24.–26.12./31.12./1.1.