Lechner Massivhaus GmbH
Genius 165 Platz 67


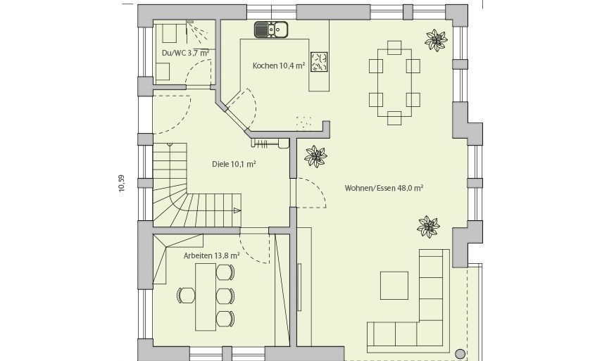
Das Musterhaus aus massiven Klima-POR-Ton-Wandelementen und mit Klimadecke, die im Sommer kühlt und im Winter effizient heizt. Lechner Massivhaus produziert in den eigenen Werken völlig unabhängig von der Witterung Massivhäuser mit Kellern. Dies ermöglicht uns alle Wünsche/Grundrisse der Bauherren zu realisieren. Unser Musterhaus können Sie in verschiedenen Größen/Wohnflächen als Stadtvilla, Bauhausvilla, klassisches Einfamilienhaus, Bungalow oder Doppelhausvariante erhalten.

Nehmen Sie direkten Kontakt zu uns auf -
gerne beantworten wir Ihre Anfragen telefonisch oder per Mail:

weitere Kontakte unter:  Musterhaus FRANKFURT am Main - Lechner Massivhaus

Frau Heike und Lutz Zittier, Telefon: +49 152 09402800,
e-Mail: Zittier.HL(@)Lechner-massivhaus.de

Frau Claudia Frankenbach, Telefon: 06101-825732,                                                                                             e-Mail:  frankenbach.c(@)lechner-massivhaus.de 

Kontakt zum Objekt „Genius 165“

Ausstellung Frankfurt
Telefon +49 6101 825732
Fax +49 6101 987648
E-Mail kontakt(@)lechner-massivhaus.de

Details

Gesamtwohnfläche 169,00 m²
Wohnfläche Erdgeschoss 86,00 m²
Wohnfläche Obergeschoss 83,00 m²

Info-Anforderung an Lechner Massivhaus GmbH


Kontakt

Firmenzentrale

Lechner Massivhaus GmbH

Steigerwaldstraße 8
91486 Uehlfeld/Aisch

Telefon: +49 9163 9976-0
Fax: +49 9163 9976-79

www.lechner-massivhaus.de

Die Ausstellung Eigenheim und Garten ist nicht verantwortlich für die Inhalte externer Internetseiten.

Eintritt

Eintrittspreis: € 3,–

Ermäßigt: € 1,50 (Kinder bis 16 Jahre, Schüler, Studenten, Rentner, Schwerbehinderte)

Kostenlos: Kinder bis 10 Jahre

Parkplatz: € 1,50

Öffnungszeiten

11:00 bis 18:00 Uhr
Mittwoch, Donnerstag, Freitag, Samstag und Sonntag* 
(Montag und Dienstag ist Ruhetag)

* Auch feiertags. Gilt nicht am: Karfreitag,
24.–26.12./31.12./1.1.