HUF HAUS GmbH & Co. KG
HUF HAUS Platz 18


Naturerlebnis im HUF Haus

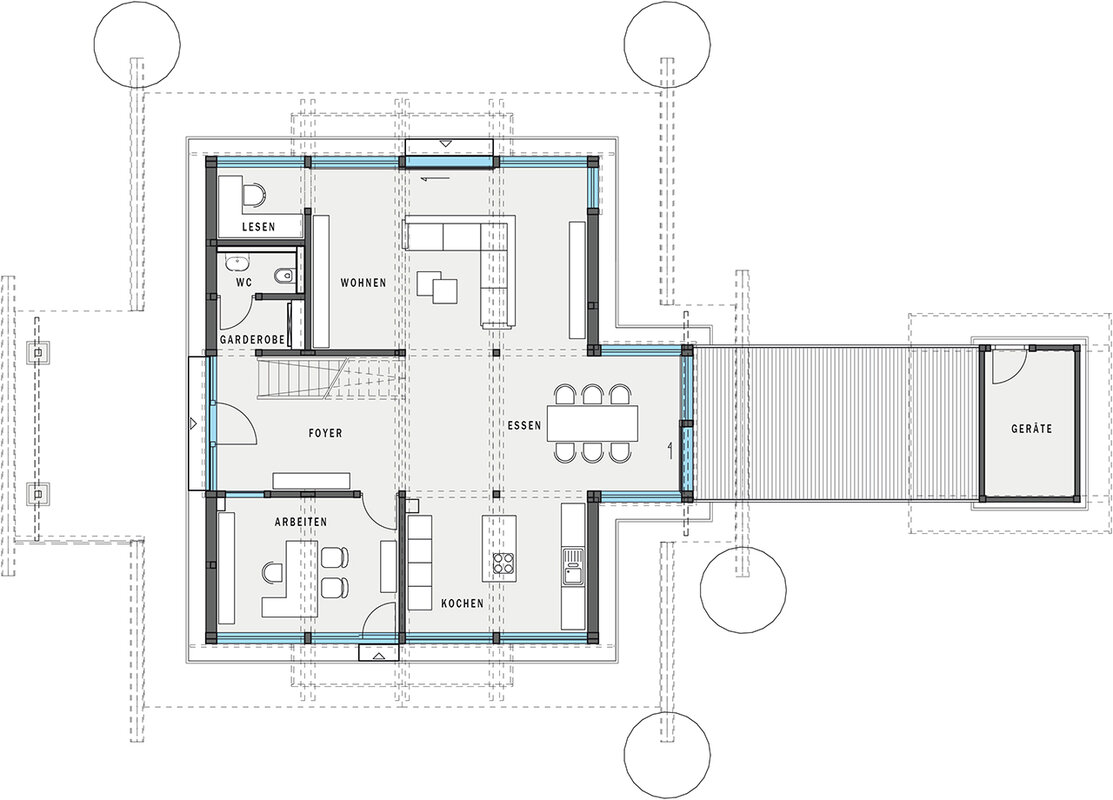
Schon das gläserne Eingangsportal gibt den Blick auf die faszinierende HUF Fachwerkarchitektur frei, die den Charakter des HUF Hauses ART 4 in der Ausstellung Bad Vilbel prägt. Im Inneren besticht die Geometrie der sichtbaren Holzkonstruktion im Wech­selspiel des Tageslichts. Wohn-und Kochbereich sind so angeordnet, dass der Essplatz mit direktem Zugang zur Terrasse, Haus und Garten harmonisch verbindet. Im gläsernen Erker ist die Natur besonders spürbar –Sonne, Regen, Schnee oder Gewitter werden zum erlebbaren Naturschauspiel.

Im Ober­geschoss dient eine offene Galerie als Brücke zwischen dem Elternbereich und der Kinder-und Gästesuite. Platz für zwanglose Geselligkeit bieten dort die Sitzlounge oder, bei entsprechendem Wetter, der Balkon. Ein pfiffiges Detail im Kinderzimmer: das Hochbett über der begehbaren Ankleide.

Entdecken Sie die außergewöhnliche Atmosphäre eines HUF Hauses, das HUF HAUS FEELING, live vor Ort bei uns im Musterhaus und überzeugen Sie sich von der überragenden Ausführungsqualität der vielen HUF Details.

Nehmen Sie direkten Kontakt zu uns auf -
gerne beantworten wir Ihre Anfragen telefonisch oder per Mail:

Herr Tobias Hoffmann, Telefon: +49 (151) 29660066,
e-Mail: frankfurt(@)huf-haus.com, Tobias.Hoffmann(@)huf-haus.com 

Kontakt zum Objekt „HUF HAUS“

Ausstellung Frankfurt
Telefon +49 6101 87730
Fax +49 6101 89803
E-Mail frankfurt(@)huf-haus.com

Details

Gesamtwohnfläche 185,00 m²
Wohnfläche Erdgeschoss 112,08 m²
Wohnfläche Obergeschoss 81,63 m²
Konstruktionsart Leimholz-Fachwerkkonstruktion

Info-Anforderung an HUF HAUS GmbH & Co. KG


Kontakt

Firmenzentrale

HUF HAUS GmbH & Co. KG

Franz-Huf-Straße 1
56244 Hartenfels

Telefon: +49 2626 761-200
Fax: +49 2626 761-103

www.huf-haus.com

Die Ausstellung Eigenheim und Garten ist nicht verantwortlich für die Inhalte externer Internetseiten.

Eintritt

Eintrittspreis: € 3,–

Ermäßigt: € 1,50 (Kinder bis 16 Jahre, Schüler, Studenten, Rentner, Schwerbehinderte)

Kostenlos: Kinder bis 10 Jahre

Parkplatz: € 1,50

Öffnungszeiten

11:00 bis 18:00 Uhr
Mittwoch, Donnerstag, Freitag, Samstag und Sonntag* 
(Montag und Dienstag ist Ruhetag)

* Auch feiertags. Gilt nicht am: Karfreitag,
24.–26.12./31.12./1.1.