RENSCH-HAUS GMBH
Innovation R Musterhaus Bad Vilbel Platz 53


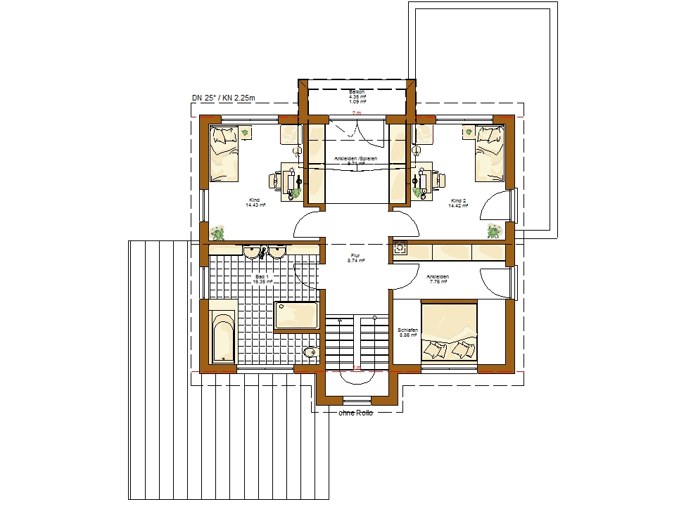
Innovation R bietet unglaublich viele Kombinationsmöglichkeiten - und jedes neue Bauvorhaben stellt uns immer wieder vor die spannende Herausforderung, die jeweils beste Lösung zu realisieren. Im Musterhaus Bad Vilbel, das den Namen Innovation R trägt, haben wir uns für eine klassische Satteldacharchitektur in Kombination mit einem modernen Flachdach-Anbau entschieden. Hier treffen Sie Ihren freundlichen RENSCH-HAUS Bauberater. Einige unserer Highlights: Podesttreppe, offener Ankleide- und Spielbereich für Kinder und ein bemerkenswert aufgeteiltes Schlafzimmer. Insgesamt stehen im Musterhaus Bad Vilbel 168 m² Wohnfläche zur Verfügung - nicht eingerechnet die 26 m² des Büroanbaus und die Eingangsüberdachung.

Alle m²-Angaben sind Circa-Angaben und beziehen sich auf die nutzbare Fläche.

Nehmen Sie direkten Kontakt zu uns auf -
gerne beantworten wir Ihre Anfragen telefonisch oder per Mail:

Harald Stamm
Telefon: 06101 583452, Mobil: 0151 23278932, e-Mail: h.stamm(@)rensch-haus.com

Christian Stenner
Telefon: 06136 9544591, Mobil: 0171 2711011, e-Mail: c.stenner(@)rensch-haus.com

Jetzt direkt einen Termin vereinbaren. 

Kontakt zum Objekt „Innovation R Musterhaus Bad Vilbel“

Ausstellung Frankfurt

Details

Gesamtwohnfläche 167,49 m²
Wohnfläche Erdgeschoss 85,86 m²
Wohnfläche Obergeschoss 81,36 m²
Konstruktionsart Holztafelbauweise

Info-Anforderung an RENSCH-HAUS GMBH


Kontakt

Firmenzentrale

RENSCH-HAUS GMBH

Mottener Straße 13
36148 Kalbach-Uttrichshausen

Telefon: +49 9742 91-0
Fax: +49 9742 91-174

www.rensch-haus.com

Die Ausstellung Eigenheim und Garten ist nicht verantwortlich für die Inhalte externer Internetseiten.

Eintritt

Eintrittspreis: € 3,–

Ermäßigt: € 1,50 (Kinder bis 16 Jahre, Schüler, Studenten, Rentner, Schwerbehinderte)

Kostenlos: Kinder bis 10 Jahre

Parkplatz: € 1,50

Öffnungszeiten

11:00 bis 18:00 Uhr
Mittwoch, Donnerstag, Freitag, Samstag und Sonntag* 
(Montag und Dienstag ist Ruhetag)

* Auch feiertags. Gilt nicht am: Karfreitag,
24.–26.12./31.12./1.1.