WeberHaus GmbH & Co. KG
Villa mit Aussicht Platz 35


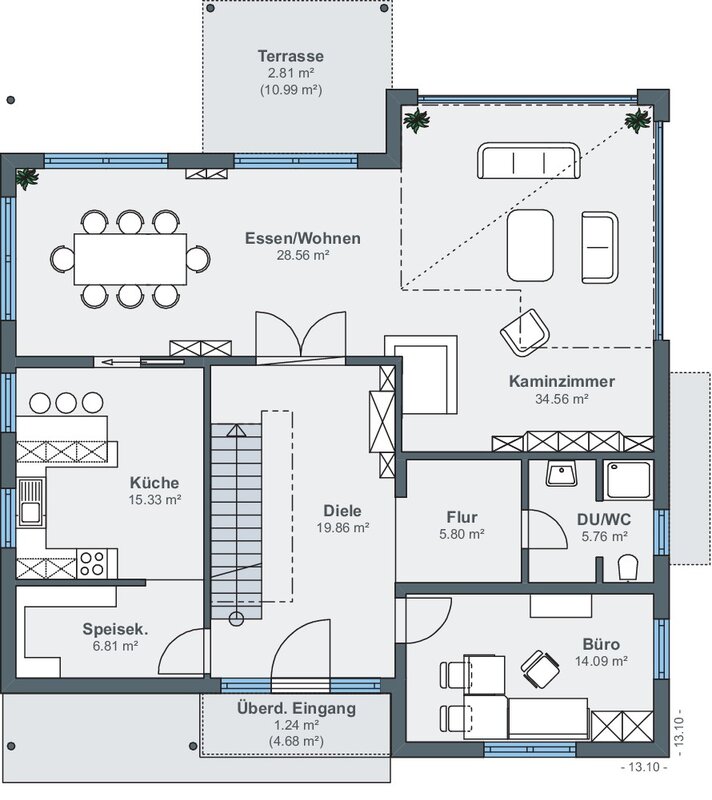
Klare Formen, schnörkellose Architketur - WeberHaus präsentiert sich mit seinem Ausstellungshaus in Bad Vilbel einmal mehr als Trendsetter im modernen Hausbau. Auf 131 m² bietet das Erdgeschoss neben einem rund 60 m² großen Wohn-/Essbereich eine großzügige Küche, ein Gäste- oder Arbeitszimmer sowie Duschbad und Gäste-WC. Repräsentativ ist der Eingangsbereich mit seiner modernen, geradenen Geschosstreppe. Sie führt direkt zur Galerie im Obergeschoss.
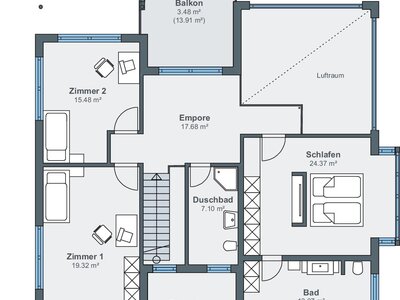
Die zweigeschossige Bauweise mit geschosshohen Fensterelementen sorgt für freie Aussicht auf zwei Etagen. Mit zwei Kinderzimmern, Elternschlafzimmer, Voll- und Duschbad bietet das Obergeschoss ausreichend Platz zur Entfaltung.

Kontakt zum Objekt „Villa mit Aussicht“

Ausstellung Frankfurt
Telefon +49 6101 58420
Fax +49 6101 584220

Details

Gesamtwohnfläche 227,20 m²
Wohnfläche Erdgeschoss 131,60 m²
Wohnfläche Obergeschoss 95,60 m²
Konstruktionsart Holzrahmenbauweise

Info-Anforderung an WeberHaus GmbH & Co. KG


Kontakt

Firmenzentrale

WeberHaus GmbH & Co. KG

Am Erlenpark 1
77866 Rheinau-Linx

Telefon: +49 7853 83-0
Fax: +49 7853 83-417

www.weberhaus.de

Die Ausstellung Eigenheim und Garten ist nicht verantwortlich für die Inhalte externer Internetseiten.

Eintritt

Eintrittspreis: € 3,–

Ermäßigt: € 1,50 (Kinder bis 16 Jahre, Schüler, Studenten, Rentner, Schwerbehinderte)

Kostenlos: Kinder bis 10 Jahre

Parkplatz: € 1,50

Öffnungszeiten

11:00 bis 18:00 Uhr
Mittwoch, Donnerstag, Freitag, Samstag und Sonntag* 
(Montag und Dienstag ist Ruhetag)

* Auch feiertags. Gilt nicht am: Karfreitag,
24.–26.12./31.12./1.1.