Büdenbender Hausbau GmbH
Casaretto Platz 35


Willkommen im Smart Home

Von A bis Z clever durchdacht ist das neue Fertighaus Casaretto von Büdenbender Hausbau. Komfortabler Wohnraum verschmilzt hier mit intelligent untereinander vernetzten Systemen. Bei Casaretto handelt es sich um ein Design-Haus im Bungalowstil mit Einliegerwohnung, welches durch eine clevere Aufteilung und viele „smarte“ Extras begeistert.

Die zwei Etagen des modernen Flachdachbaus verteilen sich auf insgesamt 187 m² Wohnfläche. Das Erdgeschoss empfängt die Bewohner mit allen Räumlichkeiten, die man zum Leben braucht: Ein großzügiger, offener Wohn-Ess-Bereich mit integrierter Küche, zwei Schlafzimmer, ein Ankleideraum, ein mit Badewanne, Dusche und komplett verglaster Sauna ausgestattetes Bad sowie zwei WCs lassen keine Wünsche offen.

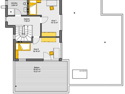
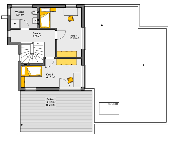
Aber Casaretto hat noch mehr zu bieten: Im Obergeschoss befindet sich eine weitere Wohnung mit Badezimmer, zwei Wohn-/Schlafräumen und einer schicken Galerie. Das Highlight: der 15 m² große Balkon, der zum Sonnen, Grillen und an der frischen Luft entspannen einlädt. Das Obergeschoss eignet sich besonders gut als eigene Etage für Kinder oder auch eine Pflegeperson, die dort ihr eigenes Reich haben und trotzdem voll ins häusliche Familienleben integriert sind. Was genau macht Casaretto zu einem Smart Home? Das Haus verfügt über eine Photovoltaikanlage, welche mit einer integrierten Speichermöglichkeit ausgestattet ist. Das bedeutet, dass sich im Hauswirtschaftsraum neben dem Wechselrichter ein Akkumulator befindet, welcher es ermöglicht, den eigenen Strom auch dann zu nutzen, wenn die Sonne nicht mehr scheint – und dies erstmals in einer kleinen wandhängenden Einheit anstelle eines großen Speicherblocks. Die Photovoltaikanlage arbeitet mit der modernen Wärmepumpenheizung Hand in Hand und teilt dieser zum Beispiel mit, wann die Sonne scheint. Die Heizung stellt sich darauf ein, indem sie erst dann das Brauchwasser aufheizt. So wird kostbare Energie gespart. Auch weitere Stromabnehmer wie Licht, Rollläden oder Sauna sind clever vernetzt und können nicht nur vor Ort, sondern auch von unterwegs aus mit dem Smartphone an- und ausgeschaltet werden.

Wie alle Häuser von Büdenbender Hausbau ist auch das Modell Casaretto mit der bewährten Klimawand atmo-tec® ausgestattet. Der patentierte, mehrschichtige Wandaufbau sorgt für eine natürliche Feuchtigkeitsregulation und schafft ein gesundes Wohlfühlklima.

Nehmen Sie direkten Kontakt zu uns auf -
gerne beantworten wir Ihre Anfragen telefonisch oder per Mail:

Herr Werner Spahr, mobil: 0172 / 4160516, e-Mail: wspahr(@)buedenbender-hausbau.de 

Kontakt zum Objekt „Casaretto“

Ausstellung Stuttgart
Telefon 0711/51882516
Fax 0711/51882517

Details

Gesamtwohnfläche 186,74 m²
Wohnfläche Erdgeschoss 126,00 m²
Wohnfläche Obergeschoss 60,74 m²

Info-Anforderung an Büdenbender Hausbau GmbH


Kontakt

Firmenzentrale

Büdenbender Hausbau GmbH

Vorm Eichhölzchen 10
57250 Netphen-Hainchen

Telefon: +49 2737 9854-0
Fax: +49 2737 9854-36

www.buedenbender-hausbau.de

Die Ausstellung Eigenheim und Garten ist nicht verantwortlich für die Inhalte externer Internetseiten.

Eintritt

Eintrittspreis: € 3,–

Ermäßigt: € 1,50
(Kinder bis 16 Jahre, Schüler, Studenten, Rentner, Schwerbehinderte)
Kinder bis 10 Jahre: kostenlos

Parkplatz: € 2,–

Öffnungszeiten

11:00 bis 18:00 Uhr
Mittwoch, Donnerstag, Freitag, Samstag und Sonntag* 
(Montag und Dienstag ist Ruhetag)

* Auch feiertags. Gilt nicht am: Karfreitag,
24.–26.12./31.12./1.1.