Regnauer Hausbau GmbH & Co. KG
Musterhaus "Klara" Platz 41


Wohnen ist Leben und Erleben. Und deshalb in besonderem Maße prägend für das Lebensgefühl des Menschen. Wie wunderbar muss es in diesem Licht betrachtet sein, ein Umfeld, wie es das Regnauer Vitalhaus Klara bietet, mit seinen Lieben genießen zu dürfen? Architektonisch anspruchsvoll, technisch innovativ und wohngesund mit klarem Fokus auf das Wesentliche.

So tritt der geradlinig geschnittene Baukörper souverän auf. In der Grundform des Hauses mit Satteldach traditionell – in seinem Habitus minimalistisch. In der Optik konsequent reduziert auf die klassischen Materialien Putz, Holz und Glas. Perfektion in der Einfachheit eines kubistischen Architekturstils.

 

Nehmen Sie direkten Kontakt zu uns auf -
gerne beantworten wir Ihre Anfragen telefonisch oder per Mail:

Regnauer Hausbau, Telefon: +49 8667 72-222, e-Mail: hausbau(@)regnauer.de

Kontakt zum Objekt „Musterhaus "Klara"“

Ausstellung Stuttgart
Telefon +49 711 2596489
Fax +49 711 2596770
E-Mail hausbau(@)regnauer.de

Details

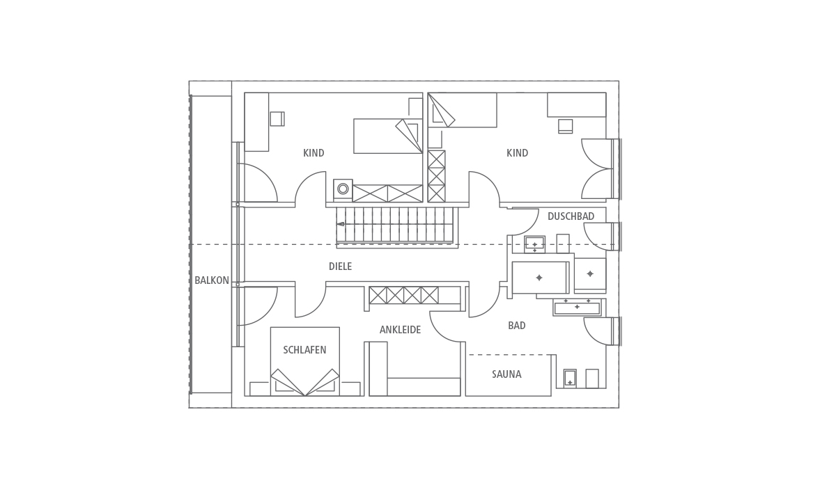
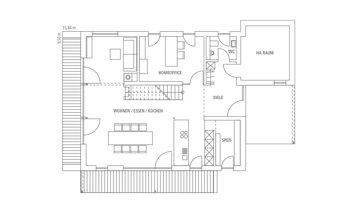
Gesamtwohnfläche 169,00 m²
Wohnfläche Erdgeschoss 91,00 m²
Wohnfläche Obergeschoss 78,00 m²
Konstruktionsart Holztafelbauweise

Info-Anforderung an Regnauer Hausbau GmbH & Co. KG


Kontakt

Firmenzentrale

Regnauer Hausbau GmbH & Co. KG

Pullacher Straße 11
83358 Seebruck/Chiemsee

Telefon: +49 8667 722-22
Fax: +49 8667 722-90

www.regnauer.de

Die Ausstellung Eigenheim und Garten ist nicht verantwortlich für die Inhalte externer Internetseiten.

Eintritt

Eintrittspreis: € 3,–

Ermäßigt: € 1,50
(Kinder bis 16 Jahre, Schüler, Studenten, Rentner, Schwerbehinderte)
Kinder bis 10 Jahre: kostenlos

Parkplatz: € 2,–

Öffnungszeiten

11:00 bis 18:00 Uhr
Mittwoch, Donnerstag, Freitag, Samstag und Sonntag* 
(Montag und Dienstag ist Ruhetag)

* Auch feiertags. Gilt nicht am: Karfreitag,
24.–26.12./31.12./1.1.