LUXHAUS
LUXHAUS I fine. Platz 4


LUXHAUS ist ein in dritter Generation inhabergeführter Energiesparhaushersteller mit Sitz in der Nähe von Nürnberg. Bei LUXHAUS erhält jeder Kunde ein für ihn maßgeschneidertes Wohnkonzept, das auf seine individuellen Wünsche und Bedürfnisse, aber auch auf seine Gewohnheiten und besondere Lebenssituation zugeschnitten ist.

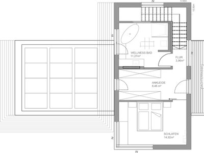
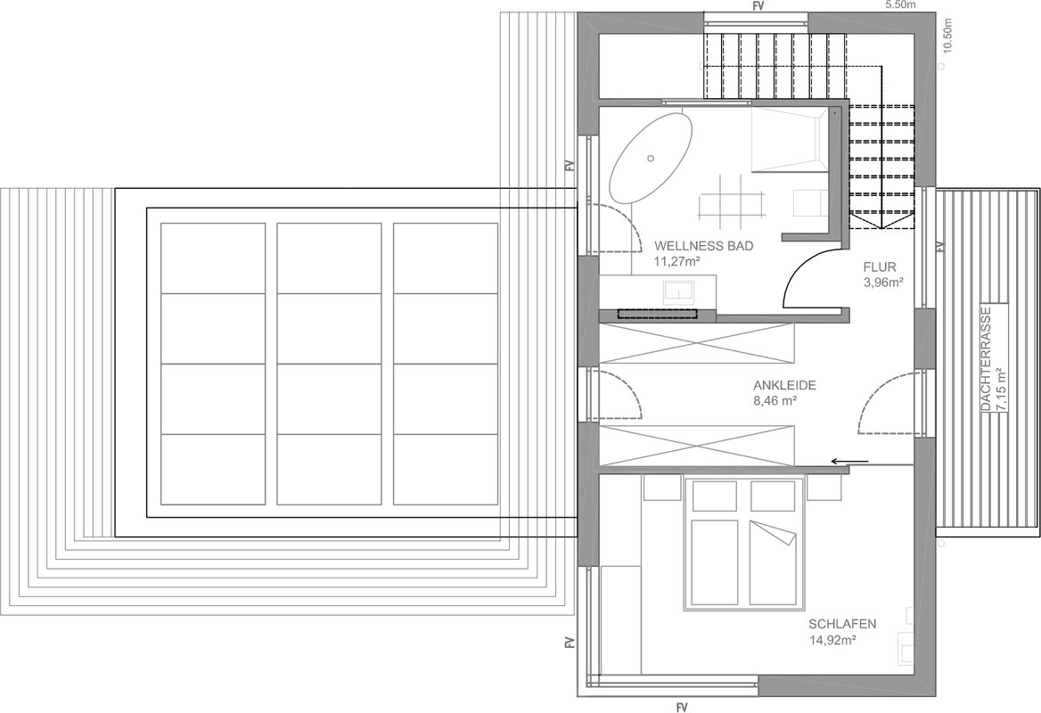
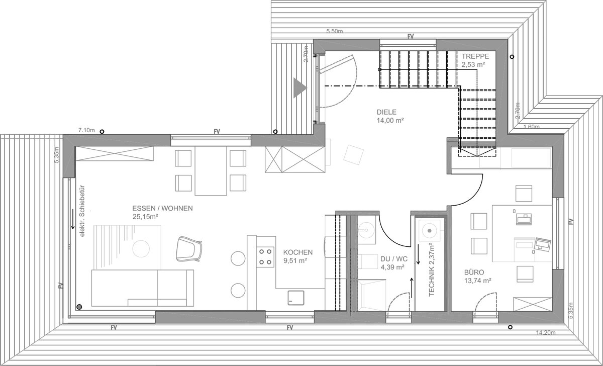
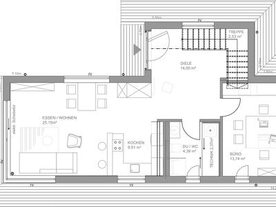
LUXHAUS ǀ fine. vereint auf einer Wohnfläche von 110m² Raumgefühl, Wohnqualität und zukunftsweisende Technik. Das Plus-Energie-Haus im Bauhausstil trägt der Tendenz zu kleineren Grundstücken Rechnung, wobei sich repräsentativer Anspruch und individuelle Rückzugsmöglichkeiten hier nicht ausschließen.

In großzügiger Offenheit erstreckt sich das Flachdachhaus über zwei Geschosse. Mit intelligenten Raumaufteilungen und geschickt auf die täglichen Bedürfnisse abgestimmten Einbaumöbeln nutzt das Konzept die Wohnfläche optimal. Eine durchgängige, auf das Wesentliche reduzierte Design- und Formensprache erzeugt ein harmonisches Raumgefühl und eine einzigartige Wohlfühlatmosphäre.

Nehmen Sie direkten Kontakt zu uns auf - 
gerne beantworten wir Ihre Anfragen telefonisch oder per Mail:

Nihat Incir, mobil: 0171 / 2348383, mobil: nihat.incir(@)luxhaus.de 

Kontakt zum Objekt „LUXHAUS I fine.“

Ausstellung Bauzentrum Poing (München)
Telefon 089 / 50 25 085
Fax 089 / 50 94 59

Details

Gesamtwohnfläche 110,00 m²

Info-Anforderung an LUXHAUS


Kontakt

Firmenzentrale

LUXHAUS

Pleinfelder Straße 64
91166 Georgensgmünd

Telefon: +49 9172 692-0
Fax: +49 9172 692-103
E-Mail: info@luxhaus.de

www.luxhaus.de

Die Ausstellung Eigenheim und Garten ist nicht verantwortlich für die Inhalte externer Internetseiten.

Eintritt

Eintrittspreis: € 4,–

Ermäßigt: € 2,00 (Kinder bis 16 Jahre, Schüler, Studenten, Rentner, Schwerbehinderte)

Kostenlos: Kinder bis 10 Jahre

Parkplatz: kostenlos

Öffnungszeiten

10:00 bis 17:00 Uhr
Dienstag, Mittwoch, Donnerstag, Freitag, Samstag und Sonntag*
(Montag ist Ruhetag)

* Auch feiertags. Gilt nicht am: Karfreitag,
24.–26.12./31.12./1.1.