KAMPA GmbH
CLARON 1.1090 Platz 40


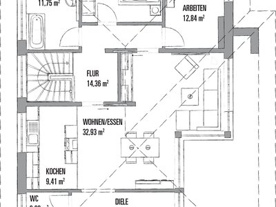
Der Bungalow CLARON 1.1090 veranschaulicht mit zeitloser Architektur, schickem Design, einzigartigem Komfort und zukunftsweisender Bauweise die KAMPA Philosophie in Bezug auf Klimaschutz, Holzbau, Ökologie und Energie. Der Bungalow im serienmäßigen Standard „Effizienzhaus 40 plus” verbraucht weniger Energie als er selbst erzeugt und macht seine Bewohner zu Selbstversorgern. Ein durchdachtes Haus, das sich perfekt für Kleinfamilien oder Paare eignet. Der Grundriss im Erdgeschoss schafft auf 109 m² klar gegliederte Zonen für die einzelnen Bereiche des Lebens ohne dabei Offenheit einzubüßen. Highlight und zentraler Mittelpunkt ist ein intelligentes Schrank- und Raumteiler-Element aus Holz, das dem Raumkonzept einen extravaganten Designanspruch verleiht. Ausgestattet mit integrierten Schiebetüren, könnten die einzelnen Bereiche flexibel an unterschiedliche Wohnsituationen angepasst werden. Gästen kann bei geschlossenen Schiebelementen der Einblick in private Bereiche verwehrt werden, gleichzeitig wird im Wohnbereich eine gemütliche Atmosphäre geschaffen.  Die technischen Geräte, wie z. B. Fernseher und Soundsystem, finden ebenfalls Platz in diesem Möbel.

Auf Wunsch wird der Bungalow durch einen hochwertigen Wohnkeller um eine zweite Ebene erweitert, die Wohnfläche beträgt auf beiden Etagen 164 m².

Der ausgebaute Keller ist über eine offene Treppe erreichbar, der optionale Einbau eines Homelifts gewährleistet bei Bedarf eine uneingeschränkte Barrierefreiheit auf den beiden Ebenen. Extrabreite Lichtfluter versorgen das Untergeschoss mit echtem Tageslicht. Die effiziente Dämmung inklusive angenehmer Fußbodenwärme sowie hochwertiger Ausstattung ermöglichen auch im Kellergeschoß eine ausgezeichnete Wohnqualität.

Nehmen Sie direkten Kontakt zu uns auf -
gerne beantworten wir Ihre Anfragen telefonisch oder per Mail:

Herr Rudolf Heisinger, mobil: 0176 – 62041237, e-Mail: rudolf.heisinger(@)kampa.de 

Kontakt zum Objekt „CLARON 1.1090“

Ausstellung Bauzentrum Poing (München)
Telefon 089 94548597
E-Mail info(@)kampa.de

Details

Gesamtwohnfläche 164,00 m²
Energiestandard Effizienzhaus 40 Plus

Info-Anforderung an KAMPA GmbH


Kontakt

Firmenzentrale

KAMPA GmbH

KAMPA-Platz 1
73432 Waldhausen

Telefon: +49 7367 920920
E-Mail: info@kampa.de

www.kampa.de

Die Ausstellung Eigenheim und Garten ist nicht verantwortlich für die Inhalte externer Internetseiten.

Eintritt

Eintrittspreis: € 4,–

Ermäßigt: € 2,00 (Kinder bis 16 Jahre, Schüler, Studenten, Rentner, Schwerbehinderte)

Kostenlos: Kinder bis 10 Jahre

Parkplatz: kostenlos

Öffnungszeiten

10:00 bis 17:00 Uhr
Dienstag, Mittwoch, Donnerstag, Freitag, Samstag und Sonntag*
(Montag ist Ruhetag)

* Auch feiertags. Gilt nicht am: Karfreitag,
24.–26.12./31.12./1.1.