FingerHaus GmbH
MEDLEY 3.0 Platz 15


Das Finger-Haus ist mit insgesamt drei Arbeitszimmern (eines im Erdgeschoss, zwei im Dachgeschoss) ausgeführt. Diese Räume lassen sich jederzeit umfunktionieren: Dann ist es das ideale Haus für eine vierköpfige Familie.

Der Grundriss wurde sorgfältig geplant: Von der Diele aus geht es links in ein nahezu quadratisches Arbeits- oder Gästezimmer, rechts gelangt man über eine praktische Garderobennische in das WC und den Hauswirtschaftsraum. Auf fast 50 Quadratmetern präsentiert sich das Wohn-Ess-Zimmer mit zwei Highlights: dem von Eckverglasungen eingerahmten Erker und dem Essbereich vor der überdachten Terrasse. Die Küche ist nahtlos, aber etwas zurückversetzt, in den großen Bereich integriert.

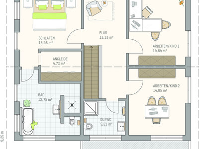
Im Dachgeschoss befinden sich zwei gleichgroße Kinder- oder Arbeitszimmer sowie ein separates Duschbad. Links der Treppe geht es in den „Elterntrakt“: Er besteht aus Schlafraum, Ankleide und En-suite-Badezimmer. Die Ankleide ist purer Luxus und hält das Schlafzimmer frei von Schränken. Das Badezimmer bietet eine große Badewanne, ein WC und eine bodengleiche Dusche. Hier im Dachgeschoss spielt auch der hohe Kniestock von 2,15 Metern seine Trümpfe aus: Größere Sideboards oder Schränke finden überall einen Platz.

Das MEDLEY 3.0 wurde von FingerHaus als KfW-Effizienzhaus 40 Plus ausgeführt. Zum Einsatz kommen neben einer hochwertigen Dämmung eine Luft/Wasser-Wärmepumpe, eine Fußbodenheizung, eine Lüftungsanlage mit Wärmerückgewinnung und eine Photovoltaikanlage mit Hausbatterie. Zu den Extras gehören eine Smart-Home-Lösung von somfy (io-Homecontrol) und die HomeWay-Multimediaverkabelung. 

Kontakt zum Objekt „MEDLEY 3.0“

Ausstellung Stuttgart
Telefon +49 711 5771473
Fax +49 711 5771471

Details

Gesamtwohnfläche 176,23 m²
Wohnfläche Erdgeschoss 97,07 m²
Wohnfläche Obergeschoss 79,16 m²
Konstruktionsart Holzrahmenkonstruktion in Großtafelbauweise

Info-Anforderung an FingerHaus GmbH


Kontakt

Firmenzentrale

FingerHaus GmbH

Auestraße 45
35066 Frankenberg/Eder

Telefon: +49 6451 504-560
Fax: +49 6451 504-500

www.fingerhaus.de

Die Ausstellung Eigenheim und Garten ist nicht verantwortlich für die Inhalte externer Internetseiten.

Eintritt

Eintrittspreis: € 3,–

Ermäßigt: € 1,50
(Kinder bis 16 Jahre, Schüler, Studenten, Rentner, Schwerbehinderte)
Kinder bis 10 Jahre: kostenlos

Parkplatz: € 2,–

Öffnungszeiten

11:00 bis 18:00 Uhr
Mittwoch, Donnerstag, Freitag, Samstag und Sonntag* 
(Montag und Dienstag ist Ruhetag)

* Auch feiertags. Gilt nicht am: Karfreitag,
24.–26.12./31.12./1.1.