WeberHaus GmbH & Co. KG
WeberHaus individuelles Architektenhaus Platz 15a


Geradlinig und gemütlich – Eine Stadtvilla zum Verlieben

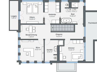
Dieses Einfamilienhaus in Fellbach vereint Gegensätze – außen gerade Linien, kubische Formen und kühle Farben, innen gemütliche Wohnbereiche, heimelige Atmosphäre und warme Holzelemente. Neben diesem modernen und doch behaglichen Erscheinungsbild überzeugt die Stadtvilla zudem durch maximale Energieeffizienz und intelligente Haussteuerung. Das elegante Stadthaus bietet mit insgesamt 220 Quadratmetern großzügiges Wohnen auf zwei Vollgeschossen. Dank PV-Anlage, Batteriespeicher und extra stark gedämmter Gebäudehülle erfüllt das Ausstellungshaus den Energiestandard KfW 40 Plus.

Nehmen Sie direkten Kontakt zu uns auf -
gerne beantworten wir Ihre Anfragen telefonisch oder per Mail:

Frau Beate Lenner-Werz, Tel. 0151-57752859, email: beate.lenner-werz(@)weberhaus.de

Frau Susanne Zondler, Tel. 0711-952710,  email: susanne.zondler(@)weberhaus.de

Herr Jürgen Bentel, Tel. 0172-7149056, email: juergen.bentel(@)weberhaus.de

Herr Maurice-Antoine Stich, Tel. 0711-9527123, email: maurice-antoine.stich(@)weberhaus.de

Herr Bastian Voß, Tel. 0172-6185898, email: bastian.voss(@)weberhaus.de

Kontakt zum Objekt „WeberHaus individuelles Architektenhaus“

Ausstellung Stuttgart
Telefon +49 711 952710
Fax +49 711 9527120
E-Mail fellbach(@)weberhaus.de

Details

Gesamtwohnfläche 219,00 m²
Wohnfläche Erdgeschoss 123,00 m²
Wohnfläche Obergeschoss 96,00 m²
Konstruktionsart Holztafelbauweise

Info-Anforderung an WeberHaus GmbH & Co. KG


Kontakt

Firmenzentrale

WeberHaus GmbH & Co. KG

Am Erlenpark 1
77866 Rheinau-Linx

Telefon: +49 7853 83-0
Fax: +49 7853 83-417

www.weberhaus.de

Die Ausstellung Eigenheim und Garten ist nicht verantwortlich für die Inhalte externer Internetseiten.

Eintritt

Eintrittspreis: € 3,–

Ermäßigt: € 1,50
(Kinder bis 16 Jahre, Schüler, Studenten, Rentner, Schwerbehinderte)
Kinder bis 10 Jahre: kostenlos

Parkplatz: € 2,–

Öffnungszeiten

11:00 bis 18:00 Uhr
Mittwoch, Donnerstag, Freitag, Samstag und Sonntag* 
(Montag und Dienstag ist Ruhetag)

* Auch feiertags. Gilt nicht am: Karfreitag,
24.–26.12./31.12./1.1.